Ristorante Oasi

Ristorante e camere in un’unica soluzione

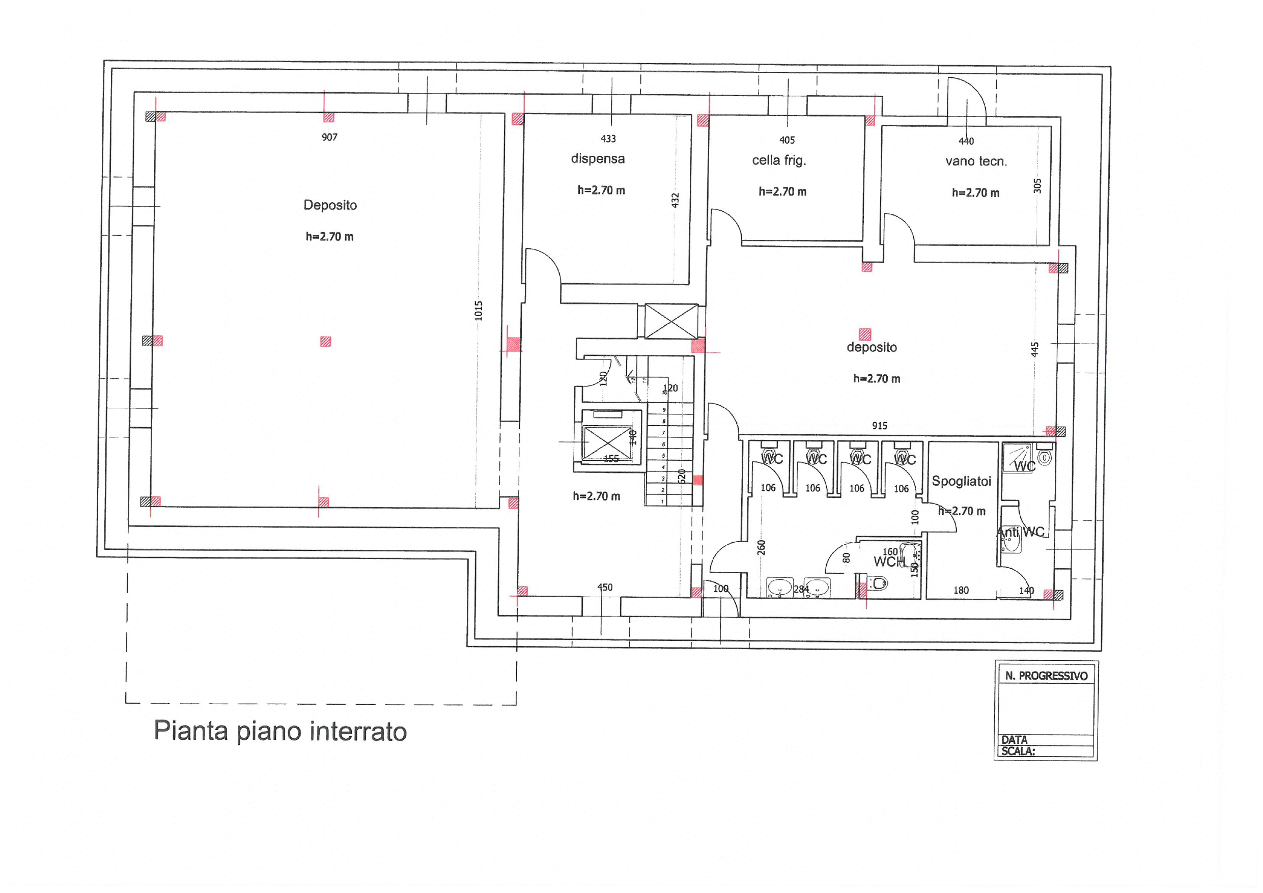
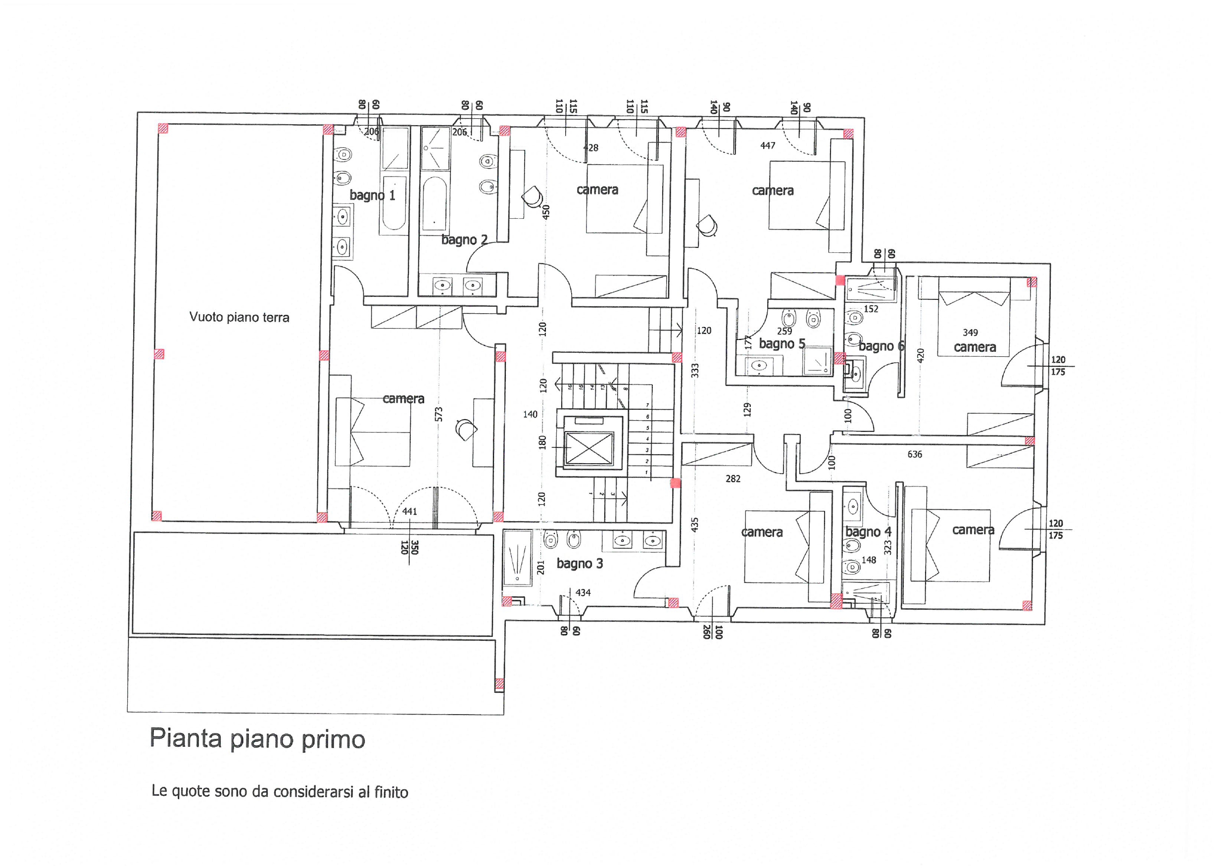
All’uscita del casello autostradale di Prato Est, nella zona industriale denominata Macrolotto 2 e più precisamente in Via dei Confini, immobile turisco/ricettivo. L’immobile è così composto : al piano seminterrato si trovano due depositi, la dispensa, la cella frigo, gli spogliatoi ed i servizi; al piano terra si trovano l’ingresso, il ristorante, il bar e la cucina; al piano prima si trovano sei camere matrimoniali con i relativi servizi privati; al piano secondo si trova la zona degli uffici.

L’immobile di 850 mq totali sono così suddivisi : piano seminterrato 250 mq; piano terra 300 mq; piano primo 265 mq; piano secondo 35 mq. Completano la proprietà il giardino privato di circa 500 mq, il lastricato di 200 mq ed i parcheggi privati.

Caratteristiche interne: Gres porcellanato in tutto l’immobile, citofono, impianto elettrico, impianto d’allarme, impianto tv, impianto tv satellitare e WI-Fi presente in tutta la struttura, irrigazione esterna, impianto di riscaldamento e di aria condizionata Sanyo a mezzo fancoil, ascensore ed accesso pedonale e carrabile con cancello automatico.

Dati tecnici

Località: Prato

Tipologia edilizia : Turistico/Ricettivo

Stato lavori : Realizzato

Superficie appartamenti : 850 mq

Spazi esterni : Giardino 500 mq, lastricato 200 mq

Box auto : Parcheggi privati

Accessibilità : Ascensore, accesso pedonale e carrabile con cancello automatico

Planimetrie e foto

Altri progetti